00

kharkiv, like many large cities, is overcrowded with cars; in essence, the city belongs to vehicles (for example, look at the largest square in europe - or is it actually the largest parking lot in europe?). the scale of the city corresponds to the scale and speed of transport, not to the human being…
why are the streets of european cities attractive, cozy, balanced, and designed with people in mind?
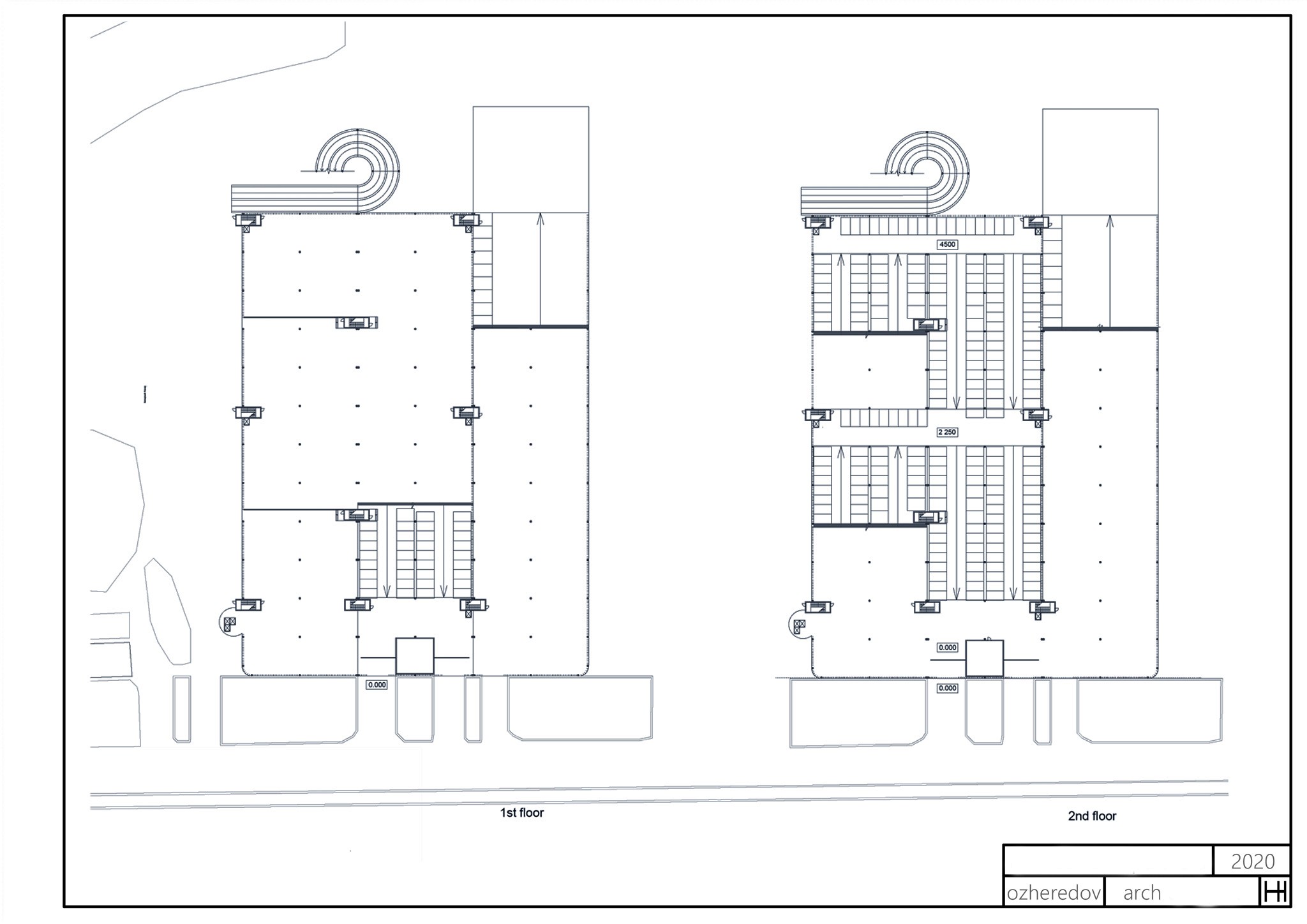
relieving kharkiv’s transport system can be achieved through the development of cycling culture and public transport. multi-level parking facilities located in key areas and within walking distance of the metro (kholodna hora, industrialna, peremoha, etc.) can reduce the number of private cars in the city center…
in developed countries, they have long been following this path, and positive trends can be observed: streets are given back to people; public transport has space to operate; the air is cleaner; it is safer; noise pollution levels decrease…

year
2019
timeframe
1/2 semester
tools
archicad, photoshop
category
Architecture
00
gallery






