00

the concept of the “slum house” is based on and develops the following features of the “fractal” master plan:
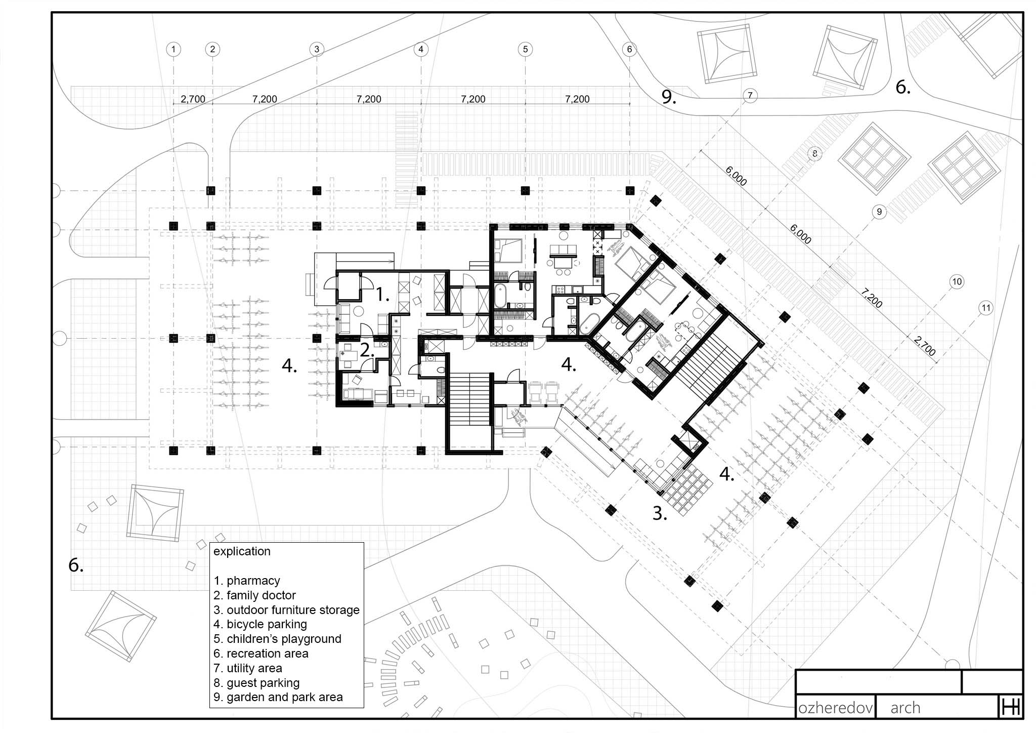
spatial and volumetric solution: balconies, bay windows, and terraces are supported by a structural frame and form complex combinations of external spaces in the vertical direction; projecting elements can be modified depending on the needs of residents.
external design: due to the modular cellular structure, each resident can express individuality—there is an opportunity to choose any type of plastering or insulation for the projecting part of their apartment without negatively affecting the overall appearance; the placement of air conditioners on the facade is anticipated; terraces allow for gardens, and the facade changes depending on the seasons
year
2019
timeframe
1 semester
tools
scketching, prototyping, archicad, photoshop, scketchup, 3dsmax, corona render
category
Architecture
00
gallery












